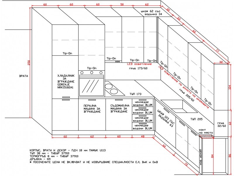
Проектиране на кухни по поръчка
Фирмата проектира и изгражда кухни по поръчка.
 
Атрактивни цени на Проектиране на кухни по поръчка в Перник (България) от компания Мари Мебел, ЕООД.

За повече информация, направете запитване в системата.
Информацията е точна: 07.10.2025 г.